»Hinter dem Kirchhof« AffalterbachWohnung 7
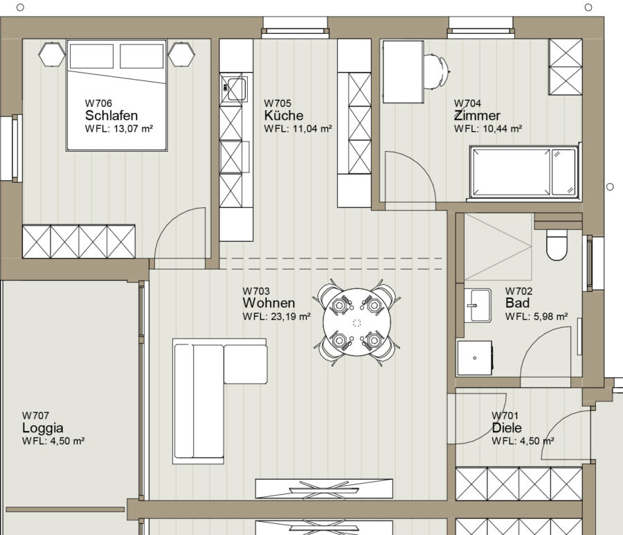
Wohnung 7
3-Zimmer Obergeschosswohnung mit Loggia
Verkauft
- Diele4,50 m2
- Bad5,98 m2
- Zimmer10,44 m2
- Wohnen23,19 m2
- Küche11,04 m2
- Schlafen13,07 m2
- Loggia9,00 m2 (50%)
- Wohnfläche:72,72 m2
- Kaufpreis:413.000 Euro
- TG Stellplatz:20.000 Euro
- Außenstellplatz:5.000 Euro
Kaufpreise zzgl. Nebenkosten wie Notar und Grunderwerbssteuer
Weitere Wohnungen Interesse?















